海を全身で感じられる抜群のロケーションに建つ住まい。
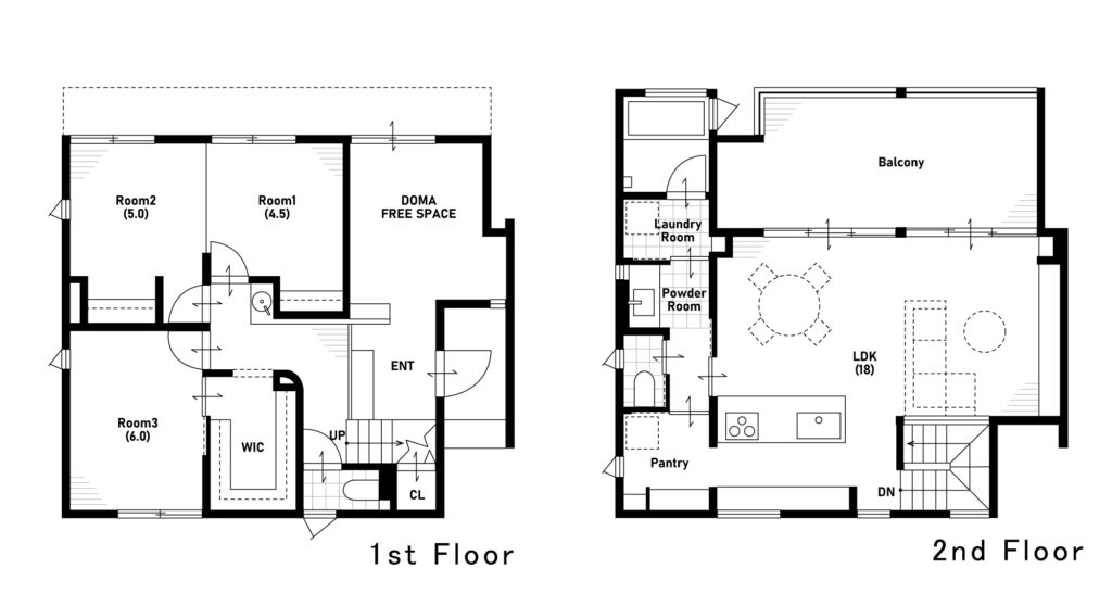
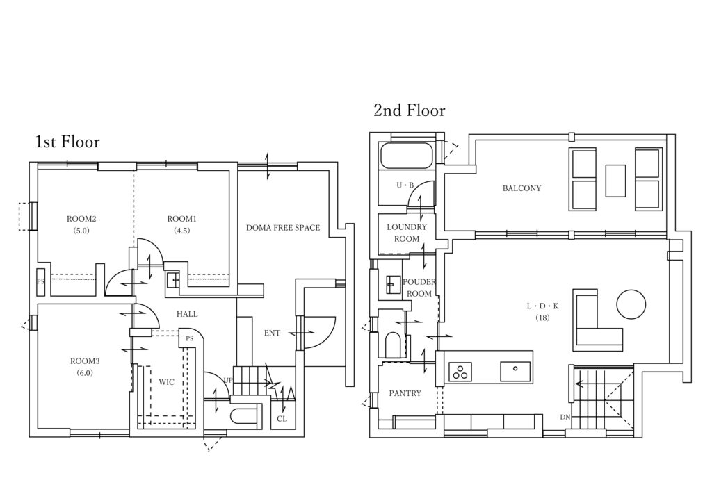
その立地を活かしてLDKや水回りなど、メインとなる生活空間を二階へ展開。
リビングには二階ならではの勾配天井とし解放感も抜群で、大開口の窓は一日中明るく過ごせます。
続くバルコニーは完全プライベート空間。海の眺めを愉しみながら過ごせる贅沢な場所です。
ギャラリー
Gallery
間取り図
floor plan

360°バーチャルツアー
Virtual tour
詳細情報
Detail
- 所在地
-
福岡市西区
- 間取り
-
3LDK+土間
- 敷地面積
-
173.98㎡(52.63坪)
- 延床面積
-
113.47㎡(34.32坪)




















