時を重ね、暮らしを紡ぐ。
築35年のマンションに、和の静けさとモダンな要素を重ねたリノベーション。
かつての住まいの名残を丁寧に残しながら、和モダンの小上がりと掘りごたつを中心に、くつろぎの空間へと生まれ変わりました。
間接照明の柔らかな光は、あえて躯体のまま活かした天井に陰影を添えます。和の落ち着きと特別感は、毎日の「ただいま」をちょっとだけドラマチックに演出してくれることでしょう。
施主の声に応え、I型から対話が生まれるL型へと変貌を遂げたキッチンは、無垢材で造作したオンリーワンの空間です。
以前のお住まいから持ち込んだ3連の室内窓やアイアン手摺の思い出のアイテムも、今の暮らしにちゃんと居場所を見つけてくれました。
リノベーション後
After
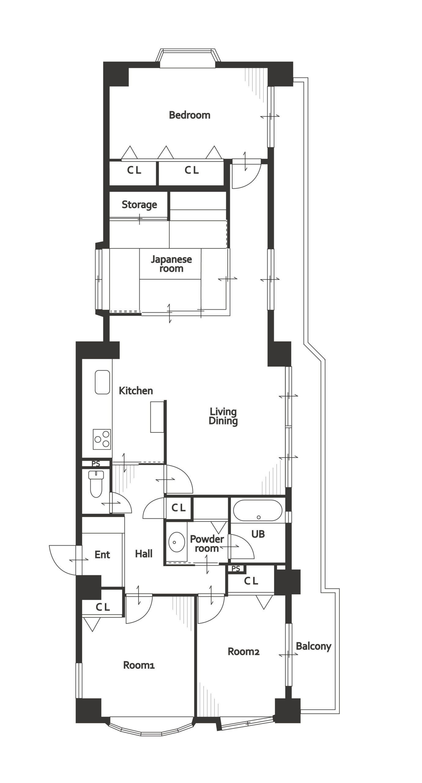
間取り図
floor plan


リノベーション前
Before



詳細情報
Detail
- 所在地
-
福岡市中央区
- 間取り
-
3LDK
- 築年数
-
35年
- 専有面積
-
106.70㎡(32.27坪)




















