お子様が巣立ち、ご夫婦ふたりで寄り添いながら、ゆったりとしたセカンドライフを楽しめる平屋です。
3LDKの間取りは、ふたりの時間も、それぞれの一人時間も大切にできるちょうど良い広さ。
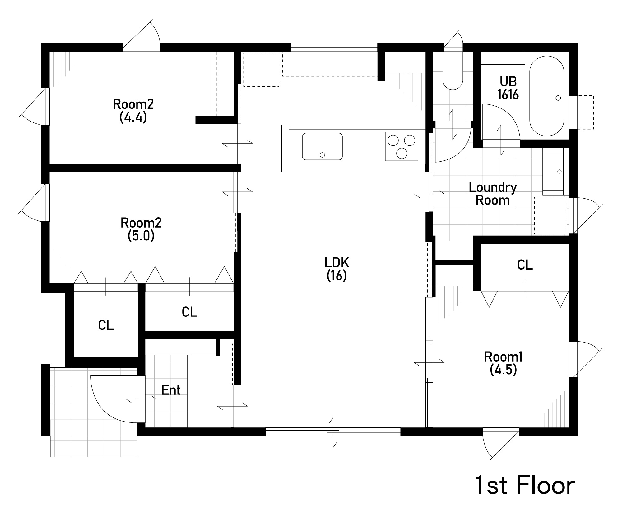
LDKに隣接した空間は、普段はリビングとつなげて開放的に。
お子様やお孫様が遊びに来たときには扉を閉めて、居室としても使える柔軟なスペースです。
20坪というコンパクトさの中に、無駄のない動線としっかりした収納力を確保しました。
ふたりの暮らしを軽やかに、そして心地よくしてくれる住まいです。
ギャラリー
Gallery
間取り図
floor plan

詳細情報
Detail
- 所在地
-
糟屋郡宇美町
- 間取り
-
3LDK
- 敷地面積
-
166.79㎡(50.45坪)
- 延床面積
-
70.01㎡(21.18坪)
オーナー様の声
360°パースで家の中がどのようになるかイメージできてよかったです。
リビングやそれぞれの部屋、押し入れが予想以上に広くとれました。
思い描いているものをイメージ通りに実現していただきました。




















